Operationsabteilung
mit 8 OP-Sälen
Unsere Beispielplanung
- Grundriss in H-Form
- Für die Allgemeinchirurgie konzipiert
- Multidisziplinäre Nutzung (z.B. Appendektomien, orthopädische Eingriffe)
- Erfolgreich umgesetzt in:
Größeren Städtischen Kliniken
Bezirkskrankenhäusern
Kleinere Universitätskliniken
Isometrics

Für eine detailierte Übersicht können Sie sich hier die Datei herunterladen.
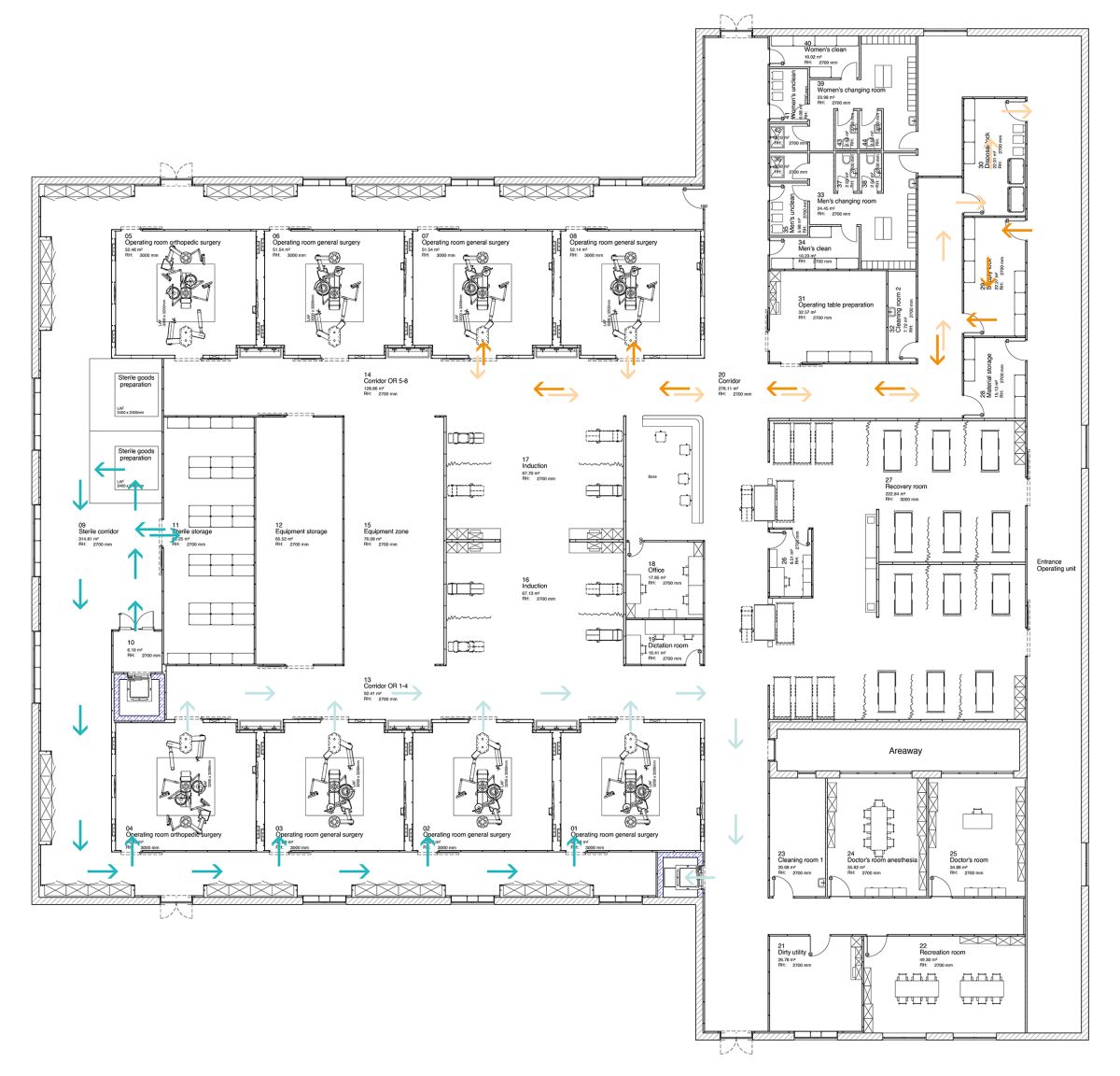
Übersicht

Haupträume
01 OP Allgemeinchirurgie
02 OP Allgemeinchirurgie
03 OP Allgemeinchirurgie
04 OP Orthopädie
05 OP Orthopädie
06 OP Allgemeinchirurgie
07 OP Allgemeinchirurgie
08 OP Allgemeinchirurgie
27 Aufwachraum
Nebenräume
11 Sterilgutlager
12 Ausrüstungslager
16 Einleitungsraum
17 Einleitungsraum
21 Schmutzraum
23 Waschraum 1
26 Überwachungsraum
31 OP-Tisch-Vorbereitung
32 Waschraum 2
Verbindungsräume
09 Sterilflur
10 Steriler Aufzug
13 OP-Flur OP 1–4
14 OP-Flur OP 5–8
15 Ausrüstungsbereich
20 Korridor
28 Materiallager
29 Versorgungsraum
30 Entsorgungsraum
Personalräume
18 Büro
19 Diktatraum
22 Erholungsraum
24 Raum des Anästhesisten
25 Ärzteraum
33 Umkleide (Männer)
34 Waschraum (Männer)
35 Schmutzraum (Männer)
36 Dusche (Männer)
37 Toilette (Männer)
38 Toilette (Männer)
39 Umkleide (Frauen)
40 Waschraum (Frauen)
41 Schmutzraum (Frauen)
42 Dusche (Frauen)
43 Toilette (Frauen)
44 Toilette (Frauen)
Workflow Material

Workflow-Index: Material
Für eine detailierte Übersicht können Sie sich hier die Datei herunterladen.

Workflow Patient

Workflow-Index: Patient
Für eine detailierte Übersicht können Sie sich hier die Datei herunterladen.

Workflow Personal

Workflow-Index: Personal
Für eine detailierte Übersicht können Sie sich hier die Datei herunterladen.

4 Operationssäle
Grundrisse und Arbeitsabläufe für OP-Abteilungen mit 4 OP-Sälen.
17 Operationssäle
Grundrisse und Arbeitsabläufe für OP-Abteilungen mit 17 OP-Sälen.